MRDK
Projects
About
Shop
Press
Contact
Projets
À propos
Boutique
Presse
Contact
MRDK
Projects
About
Shop
Press
Contact
Projets
À propos
Boutique
Presse
Contact

North of Brooklyn 8.0

North of Brooklyn – by MRDK – Photos © David Dworkind -7.jpg
North of Brooklyn 8.0

North of Brooklyn 8.0

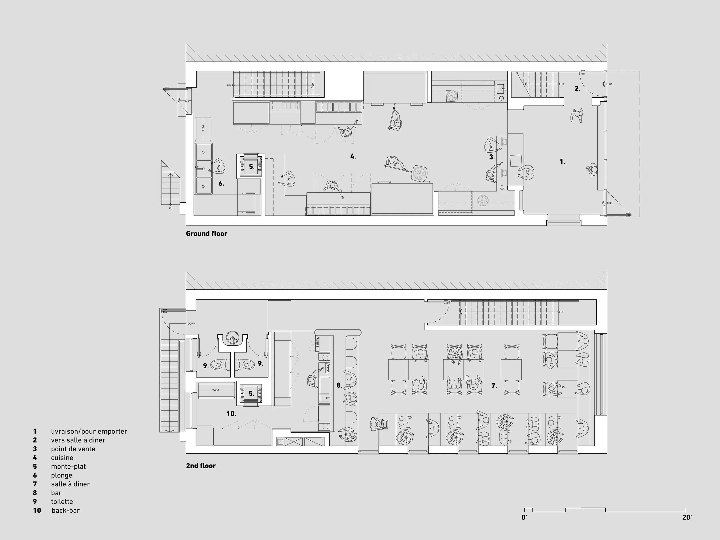
localisation: 1180 The Queensway, Etobicoke Ontario
photos: David Dworkind
date: 2025

North of Brooklyn – by MRDK – Photos © David Dworkind -1-2.jpg
North-of-Brooklyn-dyptich-05.jpg
North of Brooklyn – by MRDK – Photos © David Dworkind -9.jpg
North-of-Brooklyn-dyptich-06.jpg
No-Bro-8---plan-fr.jpg
North of Brooklyn – by MRDK – Photos © David Dworkind -15.jpg
North-of-Brooklyn-dyptich-03.jpg
North of Brooklyn – by MRDK – Photos © David Dworkind -12.jpg
North-of-Brooklyn-dyptich-08.jpg
North-of-Brooklyn-dyptich-01.jpg
North of Brooklyn – by MRDK – Photos © David Dworkind -20.jpg
North-of-Brooklyn-dyptich-04.jpg
North-of-Brooklyn-dyptich-02.jpg
North-of-Brooklyn-dyptich-07.jpg
All Dalmata North of Brooklyn 8.0 Renzo influence u Aspire Westjet lounge YYC RÉSIDENCE Q8 Red Tiger Angus Cloudborne Cabin TEC Energy Casavant North of Brooklyn 7.0 Ciele Attitude boutique Makoto Hickson residence supernat Zendesk Tiramisu LIVIA YUL Caffettiera Hinterhouse RYÚ YUL Le Super Qualité - Le Central Pizza Toni heirloom - Le Central Vesta vinvinvin RYU Peel 425F Hideout RYU Westmount Miss Wong Le Blossom Falafel Yoni Bar Royal Cafe Jouney Kamehameha Le Super Qualité Le Red Tiger North of Brooklyn 2.0
Dalmata North of Brooklyn 8.0 Renzo influence u Aspire Westjet lounge YYC RÉSIDENCE Q8 Red Tiger Angus Cloudborne Cabin TEC Energy Casavant North of Brooklyn 7.0 Ciele Attitude boutique Makoto Hickson residence supernat Zendesk Tiramisu LIVIA YUL Caffettiera Hinterhouse RYÚ YUL Le Super Qualité - Le Central Pizza Toni heirloom - Le Central Vesta vinvinvin RYU Peel 425F Hideout RYU Westmount Miss Wong Le Blossom Falafel Yoni Bar Royal Cafe Jouney Kamehameha Le Super Qualité Le Red Tiger North of Brooklyn 2.0

© 2022 DAVID DWORKIND ARCHITECT INC. | © 2022 GUILLAUME MÉNARD DESIGN